.
Buch «Mit wem baue ich?» von Hans Röthlisberger (2013):
Leseprobe Kapitel 1
1.1 Gliederung der Planungsleistungen
1.2 Vom Vorprojekt zur Baueingabe
1.3 Planungsstand beim Beginn der Bauausführung
1.4 Kostenvoranschlag
1.5 Typ 1: Kostenvoranschlag nach Arbeitsgattungen
1.6 Typ 2: Elementbasierter Kostenvoranschlag
1.7 Zur Genauigkeit des Kostenvoranschlags
1.8 Der revidierte Kostenvoranschlag
1.9 Varianten der Projektrealisierung
In diesem einleitenden Kapitel wird dargelegt, welcher Stand der Planung normalerweise beim Beginn der Bauausführung erreicht ist. Wir betrachten zu diesem Zweck die wichtigsten Planungsschritte während der Projektierung sowie die Resultate der Bauplanung, die zum Zeitpunkt der Baueingabe vorliegen. Am Schluss verschaffen wir uns einen Überblick über das Spektrum der Möglichkeiten für die Bauausführung.
.
1.1 Gliederung der Planungsleistungen
Wie können die Planungsleistungen, welche das Bauplanungsgewerbe im Rahmen eines Bauvorhabens üblicherweise erbringt, gegliedert werden? Die Instrumente dazu werden von einem wichtigen baubezogenen Berufsverband in der Schweiz bereitgestellt, dem Schweizerischen Ingenieur- und Architektenverein SIA. Es handelt sich dabei um die sogenannten Leistungs- und Honorarordnungen (abgekürzt meistens nur als Honorarordnungen bezeichnet). Historisch ist der SIA wesentlich mehr als bloss ein Berufsverband, nämlich eine grosse Dienstleistungsorganisation für die gesamte Baubranche. Ein Schwerpunkt seiner Tätigkeit ist das Schaffen von Normen, wovon die Honorarordnungen nur ein kleiner Teil sind, dafür ein überaus bedeutender. Die Honorarordnungen regeln nämlich nicht nur die Honorare der Bauplaner (was auch nicht unwichtig ist), sondern legen die Grundstruktur des gesamten Bauplanungsgeschehens fest.
.
Die Normen und Ordnungen des SIA als Mass aller Dinge
Eine Beschreibung des Bauwesens in der Schweiz ist kaum möglich ohne Bezug auf die Normierungstätigkeit des Schweizerischen Ingenieur- und Architektenvereins SIA. Die SIA-Normen und insbesondere die SIA-Honorarordnungen geben dem Bauwesen unseres Landes seine einheitliche Struktur.
Dank der SIA-Honorarordnungen ist weitgehend standardisiert, wie bei uns Bauprojekte ablaufen und welche Begriffe dabei verwendet werden. Aus diesen Ordnungen geht hervor, was Bezeichnungen wie Vorprojekt, Kostenvoranschlag oder Gesamtleitung bedeuten und in welchem Bezug sie zueinander stehen.
Rein theoretisch wäre es möglich, unser einheimisches Bauwesen nach einer ausländischen Struktur zu beschreiben, beispielsweise nach der deutschen. In Deutschland spricht man nicht nur die gleiche Sprache wie in der Deutschschweiz, man plant und baut auch nicht wesentlich anders als bei uns. Deutsche Baufachleute, die in der Schweiz arbeiten, finden sich nach einer gewissen Angewöhnungszeit an das hiesige Bauumfeld schnell zurecht. Der Gelegenheitsbauherrschaft aber, an die sich das vorliegende Buch richtet, würde die deutsche Normenstruktur erstaunlich fremd vorkommen. Die Anwendung der deutschen Honorarordnung etwa (HOAI Honorarordnung für Architekten und Ingenieure) ist für schweizerische Bauherren nicht von Nutzen. Es wäre auch höchst gewöhnungsbedürftig, die dort verwendeten Begriffe zu gebrauchen. Wem von uns ist völlig klar, was Ausdrücke wie Kostenanschlag, Kostenfeststellung, Honorarzone, Genehmigungsplanung, Objektüberwachung, Aufmass oder Objektbetreuung bedeuten?
Mit den SIA-Normen ist uns viel wohler. Das ist unsere Welt. Der SIA schafft Klarheit. Dank ihm wissen alle Akteure in der schweizerischen Bauwirtschaft, was Begriffe wie Bauprojekt, Bauleitung, Kostenvoranschlag, Abnahme oder Rügefrist bedeuten. Das Baugeschehen in der Schweiz kann somit gar nicht anders beschrieben werden, als mithilfe der SIA-Normen und insbesondere der SIA-Honorarordnungen.
Ein Überblick zum Bauwesen ohne Einbindung der SIA-Normen wäre ähnlich fragwürdig wie eine Beschreibung des schweizerischen Rechtssystems ohne Rückgriff auf das Zivilgesetzbuch und das Obligationenrecht. – Tauchen wir also ein in die SIA-Welt!
Hinsichtlich des Zitierens von Textauszügen aus den Normen habe ich mir Zurückhaltung auferlegt. Es wird nur so viel zitiert, dass die Grundideen erläutert und die Zusammenhänge aufgezeigt werden können. Die Ausführungen in diesem Buch können die Normen daher keineswegs ersetzen. Die Leserschaft ist daher gehalten, jeweils die neuesten Ausgaben der entsprechenden Normen zu konsultieren.
.
SIA-Honorarordnungen 102 ff.
Für Bauherren steht mit grosser Wahrscheinlichkeit die SIA-Honorarordnung 102 im Vordergrund. Sie regelt die Leistungen und Honorare von Architektinnen und Architekten. Der Berufsverband SIA verfolgt mit dieser Ordnung das Ziel, die Geschäftsbeziehungen zwischen Auftraggebern (Bauherren) und Planern (Architekten) zu vereinheitlichen. Der Inhalt dieser Ordnung kann somit als eine Art «Allgemeine Geschäftsbedingungen» des Architektenvertrags aufgefasst werden.
Verwandte Ordnungen zur SIA-Honorarordnung 102 (Architekten) betreffen die Bauingenieure (103) sowie die Gebäudetechnikplaner (108). Die letzte Revision der Familie der SIA-Honorarordnungen 102 ff. stammt aus dem Jahr 2003. Näheres dazu siehe Kapitel 2 «Honorarfragen» (Seite 71 ff.).
.
Leistungsbeschrieb und Leistungstabelle
Ein zentraler Bestandteil der Leistungs- und Honorarordnungen ist der Leistungsbeschrieb gemäss Artikel 4. Nachfolgend konzentrieren wir uns auf denjenigen der Architekten gemäss SIA-Honorarordnung 102 (Ausgabe 2003). Er umfasst in der gesamthaft rund fünfzig Seiten starken Ordnung zwanzig Seiten, also fast die Hälfte des Umfangs. Zusätzlich ist noch die sogenannte Leistungstabelle (Art. 7.9 SIA 102) beigefügt. Sie kann als Kurzfassung des Leistungsbeschriebs betrachtet werden. Diese wichtige Tabelle (siehe nachfolgende Seite) gibt in kompakter Form die Struktur der üblichen Architektenleistungen wieder.
Die Prozentwerte in der Leistungstabelle geben Aufschluss über die anteilsmässige Gewichtung der einzelnen Leistungsbereiche. Die Teilphase «Vorprojekt» (Art. 4.31 SIA 102) beispielsweise beinhaltet 9% der gesamten Architektenleistung.
Veränderungen an der Leistungstabelle
Gegenüber der vollständigen Version in der SIA-Honorarordnung 102 ist die nachfolgend wiedergegebene Leistungstabelle etwas vereinfacht. Die Angaben zu den Phasen 1, 2 und 6 sind gekürzt. Der Vermerk «Abschluss der Planung — Beginn der Bauausführung» ist in der originalen Version nicht enthalten und von mir aus didaktischen Gründen eingefügt worden, um den Leistungsumfang der Bauausführung hervorzuheben.
.
Leistungstabelle gemäss SIA-Honorarordnung 102 (Architekten)
Art. 7.9 SIA 102; Ausgabe 2003

.
Phasen und Teilphasen
Der Leistungsbeschrieb ist in sechs Phasen gegliedert, wobei die Phasen 3 bis 5 in der Regel im Zentrum stehen. Bei den Phasen 1 «Strategische Planung» und 2 «Vorstudien» geht es um vorbereitende Tätigkeiten für die eigentliche Bauplanung. Sie kommen nicht bei jedem Bauvorhaben vor, sind daher optional und besonders zu vereinbaren. Das Gleiche gilt für die Phase 6 «Bewirtschaftung», welche die Nutzungsphase nach der Bauausführung abdeckt.
Die Hauptphase der Bauplanung entspricht der Phase 3 «Projektierung». Mit ihr befassen wir uns in diesem Buch nur in dieser Einleitung und somit nur am Rande. Ihr Abschluss wird definiert durch die Teilphase «Bewilligungsverfahren» (Art 4.33 SIA 102). Die Baueingabe ist die entscheidende Zäsur, welche die Planung von der Ausführung trennt. Mit der eingereichten Baueingabe ist das Projekt juristisch weitgehend verbindlich geplant. Grössere Änderungen sind nun nicht mehr so ohne Weiteres möglich.
Nach der Projektierung geht es um die Bauausführung, das hauptsächliche Thema dieses Buches. Die Bauausführung umfasst die Phasen 4 «Ausschreibung» und 5 «Realisierung».
.
Leistungsmodell (Ordnung SIA 112)
Der Vollständigkeit halber sei erwähnt, dass es im Bauplanungsgewerbe neben den traditionellen SIA-Honorarordnungen 102 ff. ein neueres Instrument gibt zum Abschluss von Planungsverträgen, nämlich das sogenannte Leistungsmodell (Ordnung SIA 112). Mit ihm kann die Gesamtheit aller Planungsleistungen in einem einzigen Vertrag in Auftrag gegeben werden, wobei die einzelnen Module projektbezogen festzulegen sind. Näheres dazu siehe Absatz «Das Leistungsmodell (Ordnung SIA 112)» auf Seite 112.
.
1.2 Vom Vorprojekt zur Baueingabe
Im Folgenden betrachten wir die typischen Tätigkeiten des Bauplanungsteams in der Hauptphase der Bauplanung (Phase 3 «Projektierung») näher. Wir halten uns dabei an die oben angesprochene SIA-Honorarordnung 102 (Architekten; Ausgabe 2003). Auf verwandte andere Ordnungen, welche die parallel dazu ablaufenden Tätigkeiten der Fachplaner (Planer für Statik und Gebäudetechnik) regeln, gehen wir nicht ein.
.
Teilphase 4.31: Vorprojekt
Die Teilphase Vorprojekt beinhaltet den besonders kreativen Teil der Planung. Das Pflichtenheft (Raumprogramm) wird in einem anspruchsvollen Prozess in eine bauliche Lösung in Rohfassung umgesetzt. Unter der Leitung des Architekten ist das ganze Planungsteam daran beteiligt.
Studium von Lösungsmöglichkeiten und Grobschätzung der Baukosten
Bei diesem ersten Leistungsbereich macht sich der Architekt mit den Absichten des Auftraggebers vertraut und sammelt die notwendigen Arbeitsunterlagen (Raumprogramm etc.). Er schätzt grob ab, ob das gewünschte Programm auf dem vorgesehenen Grundstück realisierbar ist. Dabei berücksichtigt er Randbedingungen aller Art (Gesetze, Servitute etc.). Im Weiteren schlägt er dem Auftraggeber vor, welche zusätzlichen Planer beigezogen werden sollen (Bauingenieur, Gebäudetechnikplaner etc.).
Das Pflichtenheft ist die Vorgabe der Bauherrschaft für die Projektentwicklung. Seine Erarbeitung ist keine Grundleistung des Architekten. Er ist zu entschädigen, wenn er an Teilen davon mitarbeitet (Raumprogramm, Investitionsrechnungen, Betriebsanalysen, Machbarkeitsstudien, Marktabklärungen und dergleichen mehr). Oft geschieht diese zusätzliche Beauftragung im Rahmen der vorausgehenden Phasen 1 «Strategische Planung» oder 2 «Vorstudien». – Gelände- und Gebäudeaufnahmen sind ebenfalls nicht in den Grundleistungen des Architekten enthalten und sind als besonders zu vereinbarende Leistungen zusätzlich zu entschädigen. Der entsprechende Arbeitsumfang kann erheblich sein.
Nach dem Vorliegen der Projektvorgaben macht sich der Architekt daran, verschiedene Lösungsmöglichkeiten zu prüfen und sich allmählich an das beste Konzept heranzutasten. Einzelne Varianten werden in Skizzenform aufgezeichnet. Früher waren die wichtigsten Arbeitsinstrumente dafür transparentes Skizzenpapier und weiche, dicke Bleistifte. Heute werden oft schon erste Skizzen direkt am Computer gezeichnet. – Möglicherweise wird auch ein Arbeitsmodell erstellt, beispielsweise mit Plastilin oder Karton.
Für die Baukosten der verschiedenen Lösungsmöglichkeiten wird nur die Grössenordnung geschätzt. Die zulässige Schwankungsbreite der Kostenaussage wird in der Honorarordnung (Art. 4.31 SIA 102) nicht explizit angegeben, die Ungenauigkeit kann daher +/–25% und mehr betragen. Basis der Kostenermittlung sind meistens kubische Berechnungen oder Flächenberechnungen, die nach den einschlägigen SIA-Normen erstellt werden.
Wenn sich Architekt und Bauherrschaft auf eine Lösungsmöglichkeit einigen können, wird der nächste Leistungsbereich in Angriff genommen: das Vorprojekt.
Vorprojekt und Kostenschätzung
Im Rahmen dieses nun folgenden Leistungsbereichs wird die ausgewählte skizzenartige Lösungsmöglichkeit zu einem vollständigen Vorprojekt weiter ausgearbeitet. Der Architekt berücksichtigt dabei die Vorschläge der beigezogenen Fachplaner und Berater sowie die behördlichen Auflagen. Der Massstab der Pläne wird nicht angegeben, üblich sind jedoch 1:200 oder 1:100. Erstellt wird auch ein Konstruktions- und Materialkonzept.
Nun werden noch die Unterlagen zur Beurteilung der Wirtschaftlichkeit des Vorprojekts bereitgestellt. Der Genauigkeitsgrad der Kostenaussage beträgt +/–15%, sofern nicht eine andere Vereinbarung getroffen wird. Analog dem Kostenvoranschlag, den wir später im Detail behandeln werden (siehe Abschnitt «Kostenvoranschlag»; Seite 32 ff.), können die Kosten grundsätzlich nach zwei verschiedenen Methoden gegliedert werden. Es gibt die arbeitsgattungsbezogene (traditionelle) und die elementbasierte Version. Im Vergleich zum Kostenvoranschlag ist aber beim Vorprojekt die Gliederung gröber. Bei der arbeitsgattungsbezogenen Arbeitsweise werden die Baukosten beispielsweise nach Hauptgruppen des entsprechenden Baukostenplans (BKP 2001) angegeben.
In den Grundleistungen enthalten ist ferner das Aufstellen eines generellen Zeitplanes für das Bauvorhaben. Zu den besonders zu verein-barenden Leistungen gehören weitergehende Kostenberechnungen, insbesondere der Vergleich der Baukosten von Varianten.
.
Teilphase 4.32: Bauprojekt
Während der Teilphase Bauprojekt wird das Vorprojekt zu einem bewilligungsfähigen Baueingabeprojekt weiterentwickelt. Diese Teilphase der Verfeinerung beinhaltet im Gegensatz zum Vorprojekt vermehrt auch eher routinemässige Tätigkeiten.
Bauprojekt
Die Teilphase Bauprojekt ist recht umfangreich und beinhaltet mit 13% einen erheblichen Anteil der gesamten Architektenleistung. Das wichtigste Resultat ist ein fertiger Plansatz, der als Grundlage für das Baugesuch verwendet werden kann. Der Massstab wird nicht angegeben, häufig ist jedoch von den Behörden 1:100 vorgeschrieben.
Am Bauprojekt wirken alle beteiligten Planer mit. Der Architekt koordiniert als Gesamtleiter deren Tätigkeit und berücksichtigt ihre Vorschläge im Projekt. Zusammen mit den Gebäudetechnikplanern werden beispielsweise Lage und Grösse von technischen Zentralen festgelegt. Die Zusammenarbeit kann aber weit über solche elementare Fragen hinausgehen. So ist es denkbar, dass eine energetisch optimierte Fassade von Architekt, Gebäudetechnikplaner und Fassadenplaner gemeinsam geplant wird.
Der Bauingenieur ist ein weiterer Fachplaner, der das Bauprojekt wesentlich mitprägt. Er entwirft das Tragwerk und ermittelt dessen ungefähre Dimensionen. Dadurch können beispielsweise die Höhe von Unterzügen in Betondecken oder die Lage von Aussteifungen in Stahltragwerken bereits im Bauprojekt angegeben werden.
Nicht vergessen darf man die diversen Behörden und technischen Amtsstellen, die ebenfalls Einfluss nehmen auf das Bauprojekt. Auch sie muss der Architekt koordinieren. Ihre Forderungen können auf den verschiedensten Gebieten (Brandschutz, Fabrikgesetz, Parkplätze, Gebäudeisolation etc.) ausgesprochen einschneidend sein.
Bei einer weiteren Tätigkeit geht es um das Konstruktions- und Materialkonzept. Eine erste Fassung dazu gibt es bereits aus der Teilphase 4.31 «Vorprojekt» (Leistungsbereich Vorprojekt und Kostenschätzung; Seite 23). Nun wird es in Zusammenarbeit mit dem Auftraggeber und den anderen Planern präzisiert.
Detailstudien
Dieser Leistungsbereich ist eine wichtige Vorstufe für den anschliessenden Kostenvoranschlag. Sie beinhaltet das Festlegen von Qualitäten und Materialien aller Art in Absprache mit dem Auftraggeber. Für wichtige Bauteile werden skizzenhafte Detailpläne erstellt, aus denen die technische und architektonische Lösung hervorgeht.
Ein unscheinbares, aber typisches Beispiel einer Detailskizze kann die Dachrinne bei einem konventionellen Satteldach betreffen. Die Einzelheiten der Konstruktion zeigen sich erst in einer recht grossen Schnittzeichnung (Massstab 1:1 oder 1:5). Aus ihr geht etwa hervor, wie die Unterkonstruktion des Zimmermanns beschaffen sein muss, wie die Rinne befestigt wird und welche Abwicklung die verwendeten Bleche haben. Derartige Informationen sind nötig, um beispielsweise die Kosten der Spenglerarbeiten zuverlässig ermitteln zu können.
Als besonders zu vereinbarende Leistung gilt das Erstellen eines detaillierten Material- und Konstruktionsbeschriebs (beispielsweise in Form von Raumblättern) als Arbeitsunterlage für Dritte. Zum ersten Mal wird mit diesem speziellen Beschrieb ein Dokument erwähnt, das für eine Generalunternehmersubmission verwendet werden kann. Die definitive Version davon ist später in der Teilphase 4.41 «Ausschreibung, Offertvergleich, Vergabeantrag» aufgeführt (ebenfalls als besonders zu vereinbarende Leistung).
Kostenvoranschlag
Im Leistungsbereich des Kostenvoranschlags wird eine solide Grundlage für die Beurteilung der Kosten geschaffen. Der Kostenvoranschlag basiert auf einer detaillierten Beschreibung der vorgesehenen Arbeiten und Lieferungen (oft als Baubeschrieb bezeichnet). Für alle wesentlichen Positionen werden die benötigten Mengen (Vorausmasse) ermittelt.
Betrachten wir dazu nochmals das oben angeführte Beispiel mit der Dachrinne. Massgebend für den Preis der Rinne ist zunächst das gewählte Material, beispielsweise Kupfer. Der Preis ergibt sich aus der Länge der Rinne (dem Ausmass) und dem geschätzten Einheitspreis (in Fr. pro Laufmeter) für die vorgesehene Ausführungsart. Dazu kommen noch Zuschläge, etwa für den seitlichen Abschluss.
Der Architekt kann vermutlich nicht bei allen Positionen die Preise selber genügend genau abschätzen. In diesen recht häufigen Fällen holt er bei Unternehmern und Lieferanten Richtofferten ein.
Der Kostenvoranschlag ist meistens nach dem traditionellen Baukostenplan (BKP 2001) gegliedert. Es handelt sich dabei um eine Gliederung nach Arbeitsgattungen (siehe Seite 35 ff.). Seit der Revision der SIA-Honorarordnungen 102 ff. im Jahre 2001 (eine weitere Revision hat es im Jahr 2003 gegeben) wird auch die Elementmethode (siehe Seite 40 ff.) als Gliederungsmöglichkeit genannt. Hier werden die Kosten nach Bauelementen wie Wänden, Decken, Fenstern und dergleichen gegliedert, nicht aber nach Arbeitsgattungen. Seit dem Jahr 2009 verwendet man dazu den elementbasierten Baukostenplan eBKP. Er ist letztmals im Jahre 2012 revidiert worden und trägt daher die volle Bezeichnung eBKP-H 2012 (H steht für Hochbau).
Der Genauigkeitsgrad ist im Kostenvoranschlag zu nennen und beträgt mangels besonderer Vereinbarung +/–10%. Beträge für Unvorhergesehenes sind separat auszuweisen. Im Kostenvoranschlag berücksichtigt sind die (Teil)-Kostenvoranschläge aller Spezialisten (beispielsweise des Bauingenieurs oder der Gebäudetechnikplaner).
In den Grundleistungen enthalten ist das Nachführen des generellen Zeitplanes für das Bauvorhaben. Als besonders zu vereinbarende Leistungen gelten jedoch unter anderem Schätzungen von Betriebs- und Unterhaltskosten sowie Baukostenvergleiche von grundsätzlich verschiedenen Konstruktionsarten.
Angesichts des grossen Arbeitsumfangs zur Erstellung eines soliden Kostenvoranschlags erscheint der Anteil von 4% an der gesamten Architektenleistung bescheiden.
.
Teilphase 4.33: Bewilligungsverfahren
Ziel dieser kleinen Teilphase ist das Erlangen der Baubewilligung. Sie beinhaltet das Zusammenstellen des kompletten Dossiers, das für die Eingabe nötig ist (mit Plänen, Formularen, Berechnungen etc.). Darunter fallen unterschiedliche Detailgesuche, etwa für Öltanks, Lifte oder Betriebseinrichtungen. Gesuche, die von den Spezialisten (Fachplanern) eingereicht werden, koordiniert der Architekt. Ausserdem gehören Verhandlungen mit Behörden einschliesslich Projektanpassungen aufgrund von behördlichen Anforderungen in diese Teilphase (nicht enthalten ist jedoch eine grundsätzliche Überarbeitung).
Nicht in den Grundleistungen eingeschlossen und somit besonders zu vereinbaren sind in dieser Teilphase eine ganze Reihe von Tätigkeiten (Subventionseingaben, Lärmschutzgutachten, Umweltverträglichkeitsbericht, Mitwirkung bei der Behandlung von Einsprachen, etc.).
.
1.3 Planungsstand beim Beginn der Bauausführung
Mit den Planungsresultaten, die im Rahmen der Projektierungsphase erarbeitet werden und den Planungsstand beim Beginn der Bauausführung dokumentieren, wollen wir uns nachfolgend etwas näher befassen. Grundsätzlich geht es dabei um die drei Themenbereiche Pläne, Baubeschrieb und Kosten.
.
A. Pläne
Es ist wohl den meisten Lesern aufgrund ihrer Lebenserfahrung bekannt, dass die Projektpläne bei der Definition eines Bauprojekts eine absolut dominierende Rolle spielen. Das Wesen eines Bauprojekts geht primär aus den Projektplänen hervor.
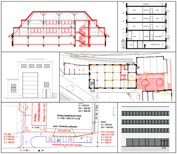
Die nachfolgend wiedergegebenen Planausschnitte vermitteln einen Eindruck vom Umfang der Pläne, die nötig sind, damit ein Bauvorhaben zum Zeitpunkt der Baueingabe genügend dokumentiert ist. Im Zentrum stehen Grundrisse, Ansichten und Schnitte.
Baueingabepläne – Beispiele von Planausschnitten

Es braucht aber auch Konzeptpläne für die Gebäudetechnik oder Pläne für die Erschliessung mit Werkleitungen. Im Hinblick auf die Kostenermittlung nötig sind ferner wichtige Detailpläne wie Fassadenschnitte oder Pläne der Balkenlagen.
.
B. Baubeschrieb
Während die Pläne primär Aufschluss geben über das Projekt an und für sich, enthält der Baubeschrieb die Informationen über die qualitativen Anforderungen. Die Mengen (Quantitäten) gehen somit aus den Plänen hervor, der Qualitätsstandard aus dem Baubeschrieb. Für die Ermittlung der Kosten zum Zeitpunkt der Baueingabe (Kostenvoranschlag) ist der Baubeschrieb unerlässlich.
Genau genommen gibt es den Begriff des Baubeschriebs gar nicht im Leistungsbeschrieb der SIA-Honorarordnung 102. Es ist vielmehr die Rede vom Konstruktions- und Materialkonzept (Art. 4.32 SIA 102). Im Generalunternehmerwesen hat der Begriff jedoch einen offiziellen Status und eine ungeheure praktische Bedeutung. Er wird darum sehr häufig auch in der Bauplanungsbranche angewendet, anstelle der etwas sperrigen Bezeichnung des Konstruktions- und Materialkonzepts. Dieser Praxis schliessen wir uns an. Näheres zum Zusammenhang zwischen dem Konstruktions- und Materialkonzept gemäss SIA-Honorarordnung 102 und dem Baubeschrieb des Generalunternehmers siehe Abschnitt «Generalunternehmersubmission» (Seite 317 ff.).
Es gibt grundsätzlich zwei Arten, wie der Baubeschrieb gegliedert werden kann: nach Arbeitsgattungen oder nach Bauelementen. In der Regel wird der Baubeschrieb gleich gegliedert wie der Kostenvoranschlag, in dem es auch diese beiden Möglichkeiten gibt. Darauf gehen wir weiter unten bei der Beschreibung des Kostenvoranschlags näher ein (Abschnitt «Kostenvoranschlag»; Seite 32 ff.).
Wir betrachten beim Baubeschrieb zuerst die Gliederung nach Arbeitsgattungen, die weitaus häufigere Art. Anschliessend werfen wir noch einen flüchtigen Blick auf die elementbasierte Gliederung.
Variante 1:
Gliederung Baubeschrieb nach Arbeitsgattungen (BKP 2001)
Der arbeitsgattungsbasierte Baubeschrieb ist nach dem traditionellen Baukostenplan BKP 2001 gegliedert. Näheres dazu siehe Absatz «Aufbau des Baukostenplans BKP 2001» (Seite 35 ff.). Jede Kostenposition im Kostenvoranschlag enthält eine Erläuterung in Textform im Baubeschrieb.
.
Drei ausgewählte Positionen im Baubeschrieb (gegliedert nach BKP 2001)

.
Im abgebildeten Beispiel sind aus realen Baubeschrieben folgende drei ausgewählte Positionen wiedergegeben:
— Pos. 211.5 Beton- und Stahlbetonarbeiten
— Pos. 215.2 Fassadenbau
— Pos. 224.1 Flachdach
Mit den aufgeführten Spezifikationen sind Ausführungsart und Qualitätsstandard der drei Positionen genügend genau definiert. Beim Flachdach beispielsweise wird festgelegt, dass die Wärmedämmung 120 mm dick ist und die Bitumenschicht aus zweilagigen Dichtungsbahnen besteht.
Raumblätter
Bei grösseren und komplexeren Bauvorhaben stösst man früher oder später an Grenzen, wenn man gewisse Positionen nur in Textform beschreiben will. Ein Beispiel sind die elektrischen Installationen. Es ist umständlich, für die Beschreibung der Position 232 «Starkstrominstallationen» nur Text zu verwenden, um die Anordnung von Steckdosen und Apparaten in allen Räumen zu spezifizieren. Dies ist zwar möglich, es ergeben sich dadurch aber lange Aufzählungen. Weiter hinten im Buch betrachten wir dazu ein Beispiel (Beispiel eines Baubeschriebs für eine Wohnüberbauung; Seite 238 ff.; siehe insbesondere Pos. 232 «Starkstrominstallationen»).
Bei komplexen Projekten ist es eleganter, pro Raum ein Datenblatt zu erstellen, und die ausgewählten Positionen des Baubeschriebs datenbankmässig zu beschreiben. Dazu gehören etwa die raumbegrenzenden Oberflächen (Bodenbeläge, Wand- und Deckenverkleidungen) oder die gebäudetechnischen Installationen. In der Terminologie gemäss SIA-Honorarordnung 102 werden solche Datensammlungen als Raumblätter bezeichnet (beispielsweise in Art. 4.32 SIA 102). Siehe dazu das Beispiel eines möglichen Informationsgehalts des Raumdatenblatts auf Seite 241.
Variante 2:
Elementbasierte Gliederung des Baubeschriebs (eBKP-H 2012)
Der elementbasierte Baubeschrieb ist nach dem neuen elementbasierten Baukostenplan eBKP-H 2012 gegliedert. Näheres dazu siehe Absatz «Der elementbasierte Baukostenplan eBKP-H 2012» (Seite 40 ff.). Jede Elementart im Kostenvoranschlag enthält eine Erläuterung in Textform im Baubeschrieb.
Die nachfolgenden Beispiele sind einer Publikation der Schweizerischen Zentralstelle für Baurationalisierung (CRB) entnommen (CRB; Bauleistungen beschreiben und Baukosten ermitteln, Seite 138).
.
Zwei ausgewählte Elemente im Baubeschrieb
(gegliedert nach eBKP-H 2012)

Quelle: CRB (Details siehe Text oben)
.
C. Kostenvoranschlag
Auf die Kostenermittlung als dritten wichtigen Teil der Planungsresultate zum Beginn der Bauausführung gehen wir aufgrund des grossen Umfangs im nachfolgenden Abschnitt «Kostenvoranschlag» ein.