Mein Leistungsspektrum als Bauherrenberater lässt sich ich in folgende sechs Schwerpunkte gliedern:
Schwerpunkt 1: Projektmanagement (bauherrenseitige Projektleitung)
1A. Projektdefinition
1B. Planer beauftragen
1C. Planungsphase
1D. Realisierungsphase
.
Schwerpunkt 2: Raumprogramm und raumbezogene Nutzeranforderungen
2A. Grundsätzliches
2B. Beispiel eines Raumprogramms
2C. Beispiel von Nutzeranforderungen für einen einzelnen Raum (Konferenzzimmer)
.
Schwerpunkt 3: Nutzeranforderungen für bauliche Teilsysteme
3A. Sicherheitskonzept (Security)
3B. Brandschutz (Safety)
3C. Unterbruchslose Stromversorgung (USV)
3D. Universelle Kommunikationsverkabelung (UKV)
3E. Lüftung
3F. Kälte
3G. Schallschutz und Raumakustik
.
Schwerpunkt 4: Beratung bei baubezogenen Verträgen
4A. Beratung bei Honorarverträgen
4B. Beratung bei Generalunternehmer-Verträgen
.
Beispiel A: Terminplan für langen Planungshorizont
Beispiel B: Tagesgenauer Terminplan für kurzen Planungshorizont
Beispiel C: Terminplan mit Angabe von Abhängigkeiten
.
Schwerpunkt 6: Industrieplanung
6A. Planungsgrundlagen
6B. Gesamtbebauungsplan
6C. Layoutplanung
.
Schwerpunkt 1: Projektmanagement (bauherrenseitige Projektleitung)
Beim Tätigkeitsgebiet der bauherrenseitigen Bauprojektleitung übernehme ich im Auftragsverhältnis Aufgaben der Bauherrenfunktion. Es geht dabei um operative Tätigkeiten, die im Unterschied zu strategischen delegierbar sind. Das Leistungsangebot kann den ganzen Projektablauf umfassen, von den ersten Machbarkeitsstudien über Planung und Realisierung bis hin zur Bauabrechnung.
Der Leistungsbereich Projektmanagement kann in die folgenden vier Sachgebiete aufgeteilt werden:
.
1A. Projektdefinition
Mit der Projektdefinition werden die grossen Leitlinien des Projekts festgelegt. Es geht um Themen wie Nutzungskonzept, Raumprogramm, Energiekonzept, Kostendach, Terminziel, etc. Die Projektdefinition ist weitgehend eine Bauherrenaufgabe. Bei einem Geschäftshaus mit Mietflächen braucht es dazu Marketingfachleute für Büroflächen, bei einem Industriebauprojekt Fachleute für die betrieblichen Abläufe (Betriebsplaner). Oft werden auch externe Experten bei gezogen.
Das Resultat der Projektdefinition ist das Pflichtenheft. Neben der Spezifikation von räumlichen Anforderungen haben Überlegungen zur Wirtschaftlichkeit eine grosse Bedeutung. Belastbare Aussagen zu den Baukosten sind daher notwendig.
Zum Zeitpunkt der Projektdefinition hat die Bauherrschaft die Bauplaner oft noch nicht beauftragt.

Projektdefinition
Karikatur Orlando 1999. Rechte bei Hans Röthlisberger
.
1B. Planer beauftragen
Die Beauftragung der Planer ist eine zentrale Bauherrenaufgabe. Der Architekt ist meistens die wichtigste Vertrauensperson der Bauherrschaft, wodurch seine Auswahl besonders sorgfältig vorgenommen werden muss. Weiter zu evaluieren sind der Bauingenieur, die Planer für die Gebäudetechnik sowie allenfalls noch Spezialisten und Berater.
Die Aufgaben und Kompetenzen der Projektbeteiligten werden anhand der Projektorganisation geregelt. Sie gibt auch Aufschluss über die Informationsflüsse. Der Leiter des Planerteams (meistens der Architekt) wird nach SIA als Gesamtleiter bezeichnet.
Das Honorarwesen des SIA ist geregelt in der Familie der SIA-Honorarordnungen 102 ff. Seit dem Jahr 2003 werden Honorarverträge gemäss dem damals entwickelten Zeitaufwandmodell abgeschlossen. Die genannten Ordnungen sind 2014 letztmals revidiert worden. Auf Drängen der Wettbewerbskommission des Bundes (WEKO) ist im Jahre 2018 ein weiterer Revisionsversuch unternommen worden, der 2019 allerdings wieder rückgängig gemacht worden ist. Zurzeit herrscht eine gewisse Konfusion im Honorarwesen. Näheres dazu siehe hier >>>.
Für eine Gelegenheitsbauherrschaft ist es nicht einfach, das Honorarwesen zu verstehen und die damit verbundenen Planungsverträge abzuschliessen. Sachkundige externe Beratung ist daher häufig erwünscht.

Anspruchsvolles Honorarwesen in der Bauwirtschaft
Karikatur Orlando 1999. Rechte bei Hans Röthlisberger
.
1C. Planungsphase
Nach der Projektdefinition und der Auswahl der Planer beginnt die Planungsphase. Jetzt bekommt das Bauvorhaben seine Form, es wird «entworfen». Auf der Basis des Pflichtenhefts (Raumprogramms) wird das Projekt in mehreren Stufen so weit konkretisiert, bis es von der Bauherrschaft genehmigt wird und das Baugesuch eingereicht werden kann. Gleichzeitig müssen genügend genaue Angaben zu den Baukosten vorliegen (Kostenvoranschlag).
In der Planungsphase lassen sich die Kosten durch ein zielgerichtetes Vorgehen in einer grossen Bandbreite beeinflussen. Die Projektleitung der Bauherrschaft soll ihren Einfluss wahrnehmen, damit ein kostenoptimiertes Projekt entsteht. Mittel dazu sind das Festlegen von Qualitäten und Materialien aller Art im Rahmen des Baubeschriebs sowie laufende Entscheide zusammen mit den Planern zu Zwischenstufen der Projektierung.
Die Aufgaben der bauherrenseitigen Projektleitung sind während der Planungsphase einschliesslich der Vorbereitungsphase der Realisierung vielfältig. Der Terminplan nebenan gibt davon einen Eindruck. Er enthält die wichtigsten bauherrenrelevanten Tätigkeiten, einschliesslich ihrer gegenseitigen Abhängigkeiten. Er zeigt auf, wo es keine Verzögerungen geben darf, nämlich bei den Tätigkeiten des so genannten kritischen Wegs. Aus dem Plan geht schliesslich hervor, welche planerischen Meilensteine es gibt und wie diese mit den Entscheidungszeitpunkten der Bauherrschaft (Baukommissionssitzungen) synchronisiert sind.
Die Projektleitung der Bauherrschaft hat unter anderem die Aufgabe, Bauplanung und Nutzung zu koordinieren. Sie muss dafür sorgen, dass die Nutzeranforderungen in einem genügenden Detaillierungsgrad erarbeitet werden und vollständig in die Bauplanung einfliessen.
Siehe dazu auch den Terminplan hier >>>
.
1D. Realisierungsphase
Im Hinblick auf die Bauausführung muss die Bauherrschaft entscheiden, welches Realisierungsmodell sie wählen will. In der Praxis vorherrschend ist die traditionelle Bauausführung mit Einzelunternehmern. Ein recht häufige alternative Variante ist das Generalunternehmermodell, noch recht exotisch dagegen der Kostengarantievertrag SIA.
Die Weichen zur Wahl des Realisierungsmodells werden oft erst in der Vorbereitungsphase der Bauausführung gestellt, es sind aber auch frühere Entscheidungszeitpunkte möglich.
Die bauherrenseitige Projektleitung muss während der Realisierungsphase viele Aufgaben wahrnehmen. Im Rahmen der Detailplanung werden im Hinblick auf die Projektoptimierung laufend Entscheide gefällt und Detailspezifikationen aller Art festgelegt. Mit Unternehmern und Lieferanten werden Vertragsverhandlungen geführt und Werkverträge abgeschlossen. Dabei muss gewährleistet sein, dass die Interessen der Bauherrschaft gebührend berücksichtigt sind, beispielsweise hinsichtlich Sicherheitsleistungen oder Garantien.
Die Projektleitung der Bauherrschaft hat die Aufgabe, dafür zu sorgen, dass die nötigen Instrumente zur Überwachung der Kosten eingerichtet werden.
Die Abschlussphase beinhaltet vielfältige Aufgaben für die Bauprojektleitung. Sie umfasst die Abnahme des Werkes und die Kontrolle der Schlussabrechnung. Letztere kann insbesondere beim Generalunternehmermodell recht anspruchsvoll sein, speziell beim Vertragsmodell des Kostendachs mit offener Abrechnung.

Im Dickicht der Gesetze und Normen
Karikatur Orlando 1999. Rechte bei Hans Röthlisberger
.
Schwerpunkt 2: Raumprogramm und raumbezogene Nutzeranforderungen
.
2A. Grundsätzliches
Bei den meisten Bauvorhaben ist es für die späteren Nutzer keine leichte Aufgabe, ihre Anforderungen an das Bauwerk zu formulieren. Denken wir etwa an Bauten des Gesundheitswesens, der Lehre und Forschung oder des öffentlichen Verkehrs. Die Nutzeranforderungen setzen sich zusammen aus Beschreibungen der Nutzung der einzelnen Räume sowie aus Anforderungen aus Nutzersicht für zahlreiche Systeme, welche das gesamte Gebäude betreffen (Sicherheit, Gebäudetechnik, etc.).
Viele nutzerseitige Stellen sind an der Spezifikation der Anforderungen beteiligt, neben den direkten Nutzern beispielsweise auch die Informatik, die Sicherheitsorganisation, der Gebäudeunterhalt oder Spezialisten zur Betreuung von Betriebseinrichtungen. Es braucht daher eine (nutzerseitige) Projektleitung, die sich um die systematische Aufbereitung und Koordination der Nutzeranforderungen kümmert und gegenüber anderen Projektbeteiligten (Bauherrschaft, Bauplaner) als offizielle Schnittstelle wirkt.
Die Nutzerprojektleitung ist eine anspruchsvolle Projektmanagementaufgabe, da sie eine grosse Menge von Informationen zu verarbeiten hat.
Die Nutzeranforderungen für ein Bauprojekt werden in verschiedenen Stufen konkretisiert. In einem frühen Stadium der Projektentwicklung spielt das Raumprogramm eine wichtige Rolle. Wie weiter die Projektentwicklung fortschreitet, umso mehr stehen qualitative Anforderungen an bauliche Teilsysteme im Vordergrund.
Beim Schwerpunkt 2 betrachten wir zuerst die Nutzeranforderungen näher, die sich auf das Raumprogramm oder auf einzelne Räume davon beziehen. Später im Schwerpunkt 3 gehen wir auf Systeme ein, welche das gesamte Gebäude betreffen wie Sicherheit, Gebäudetechnik etc.
.
2B. Beispiel eines Raumprogramms
Das Raumprogramm ist ein zentraler Teil der Nutzeranforderungen und definiert im Wesentlichen die Grösse eines Bauvorhabens und somit die ungefähren Investitionskosten. Bei Architekturwettbewerben stellt es den Kern der Nutzeranforderungen dar.
Das dargestellte Beispiel eines Raumprogramms ist nur als Zusammenfassung zu verstehen. In der detaillierten Version weisen die einzelnen Räume in der Regel umfassendere Spezifikationen auf (z.B. Raumhöhe; Traglast; Raumklima; Medienversorgung; etc.).
Bereits in einem frühen Planungsstand kann das Raumprogramm zudem grobe raumbezogene Nutzeranforderungen enthalten, wie sie etwa im nachfolgenden Beispiel 2C dargestellt sind (Layoutprinzip; Möblierungskonzept; etc.).
.
Beispiel eines Raumprogramms für ein Gewerbegebäude
.
2C. Beispiel von Nutzeranforderungen für einen einzelnen Raum (Konferenzzimmer)
Im konkreten Beispiel geht es um ein Sitzungszimmer für politische Konferenzen. Ein solcher Raum eignet sich gut, um uns ein Bild von der Komplexität der nutzerseitigen Anforderungen zu verschaffen.
Als Pflichtenheft für die Bauplaner wird ein umfangreiches Dokument mit Nutzeranforderungen erstellt, welches in Form von Text und Zeichnungen Aspekte wie die folgenden umfasst:
- Sitzordnung (Präsidium; unterstützendes Personal; Experten etc.)
- Ausrüstung mit Konferenz- und Präsentationstechnik
- Einrichtungen für die Protokollierung
- Beschallung; Beleuchtung
- Standort und Ausrüstung des Referenten bei Präsentationen
- Konzept für die Saalregie (Bedienung aller technischen Systeme)
- Medienanschlüsse für die Sitzungsteilnehmer
- Versorgung mit Hilfsmaterial und Getränken
- Vorzone des Sitzungszimmers (Supportfunktion für den Sitzungsbetrieb)
.

Sitzungszimmer des Schweizerischen Parlaments in Bern
Foto Parlamentsdienste
Quelle: frei zugängliche Bilder auf der Homepage des Parlaments; Stand 2013
.
Schwerpunkt 3: Nutzeranforderungen für bauliche Teilsysteme
Oft muss die Bauherrschaft als Grundlage für die Projektierungstätigkeit der Bauplaner für bauliche Teilsysteme Nutzeranforderungen festlegen. Konkret kann es dabei um Teilsysteme wie die folgenden handeln:
- Sicherheitskonzept (Secutity)
- Brandschutz (Safety)
- Unterbruchslose Stromversorgung (USV)
- Universelle Kommunikationsverkabelung (UKV)
- Lüftung
- Kälte
- Schallschutz und Akustik
Ein wichtiger Aspekt der systembezogenen Spezifikation von Nutzeranforderungen ist das Festlegen von Standards. Bei Bauvorhaben der öffentlichen Hand sind viele Standards oft weitgehend vorgegeben, etwa in Form der umfassenden KBOB-Richtlinien. Bei privaten Bauprojekten sind die Freiheitsgrade bei der Standardwahl höher.
Anhand der oben genannten ausgewählten Teilsysteme wollen wir uns ein Bild von der Komplexität der systembezogenen Nutzeranforderungen machen.
.
3A. Sicherheitskonzept (Security)

Mit einem Sicherheitskonzept legt der Nutzer eines Gebäudes die Anforderungen an die Sicherheit umfassend fest. Es wird oft zusammen mit einer spezialisierten Beratungsfirma entwickelt. Das Konzept bildet die Grundlage für die Ausgestaltung der sicherheitsbezogenen Teilsysteme bei der anschliessenden baulichen Umsetzung.
Das Gebäude wird in Sicherheitszonen eingeteilt. Bei einer Bank beispielsweise liegt die Schalterhalle in einer für Kunden gut zugänglichen Sicherheitszone, während der Zugang zum Tresorraum sehr viel restriktiver ist.
Für die Verwaltung der Zutrittberechtigungen bildet der Nutzer Personenkategorien. Unter den Angestellten hat beispielsweise nur eine limitierte Anzahl Zutrittsberechtigung zum Tresorraum oder zum Rechenzentrum.
Der Übergang von einer Sicherheitszone zur anderen erfolgt kontrolliert. Heute sind elektronische Systeme der Zutrittskontrolle weit verbreitet. Voraussetzung dafür sind elektronisch lesbare Ausweise der Nutzer (so genannte Badges), welche die Person identifizieren und auch die Zutrittsberechtigungen enthalten. Physisch wird der Zutritt oft mit Vereinzelungsanlagen überwacht, speziell bei Haupteingängen, manchmal auch bei Zonenübergängen.
Die Vorkehrungen für die Sicherheit können bei einem Gebäude sehr unterschiedliche Aspekte beinhalten:
- verstärkte Ausführung von Gebäudehülle und Zonengrenzen (z.B. Türen)
- spezielle gebäudeweite Sicherheitsanlagen (Alarmanlage, Zutrittskontrolle, Türschliesskontrolle, Videoüberwachung etc.)
- Geräte für die Personenkontrolle (z.B. Röntgenanlage)
- besonders geschützte Räume (z.B. Tresorraum, abhörsicheres Sitzungszimmer)
.
3B. Brandschutz (Safety)

Der Brandschutz richtet sich zum grossen Teil nach den Auflagen der Behörden. Der Einfluss des Nutzers auf das Brandschutzkonzept ist daher beschränkt, insbesondere bei der Sanierung von bestehenden Gebäuden.
In konzeptioneller Hinsicht geht es beim Brandschutz primär darum, Brandabschnitte zu bilden und Fluchtwege vorzusehen. Ergänzend werden technische Systeme eingesetzt (Brandmeldeanlage, Sprinkler, Sicherheitsbeleuchtung, Löscheinrichtungen, Rauch- und Wärmeabzugsanlagen, Evakuationsanlage, etc.).
.
3C. Unterbruchslose Stromversorgung (USV)

Mit dem Aufkommen der Informatik hat sich eine ganze Kategorie von Geräten herausgebildet, bei denen der Strom (auch kurzfristig) nicht ausfallen darf. Diese Geräte benötigen eine unterbruchslose Stromversorgung (USV). Damit wird die Stromversorgung sichergestellt, bis der Unterbruch entweder behoben ist oder eine Notstromanlage (z.B. Dieselmotor) Strom liefert.
Mit USV versorgt sind in der Regel das Rechenzentrum, die Wirecenter sowie gewisse PC-Arbeitsplätze. Auch sicherheitsbezogene Einrichtungen werden abgesichert (z.B. Videoüberwachung). Einzelne Systeme wie etwa die Brandmeldeanlage haben eine proprietäre USV. Ein spezielles Augenmerk ist auf Geräte zu legen, die bei einem Stromausfall beschädigt werden können (z.B. Beamer).
Das Aufkommen der Internet-Telefonie (VoIP) hat zur Folge, dass die ganze Infrastruktur vom VoIP-Server bis zum Telefon-Endgerät unterbruchslos versorgt werden muss. Alle Aktivkomponenten (Router, Switches) müssen also über die USV-Anlage laufen.
.
3D. Universelle Kommunikationsverkabelung (UKV)

Die Universelle Kommunikationsverkabelung (UKV) ist das Nervensystem eines modernen Gebäudes. Der gesamte IT-Datenverkehr und ein grosser Teil der übrigen Schwachstromsignale werden über diese Kabel übertragen. Separate Schwachstromleitungen sind nur noch für Brandschutzanlagen und dergleichen nötig.
Eine optimal konziperte UKV ist aus Nutzersicht wichtig, da sie eine Lebensdauer von rund 20 Jahren hat, während die aktiven Komponenten (Router, Switches) und die Endgeräte in kürzeren Intervallen ausgetauscht werden. Das Netzwerk soll eine sauber aufgebaute Topologie aufweisen, welche allen Nomen entspricht. Im Hinblick auf die Langlebigkeit der UKV sind Kompromisse in der Auslegung zu vermeiden, beispielsweise eine Überschreitung der maximalen Linklänge von 90 Metern.
.
3E. Lüftung
Bei der Konzeption von Anlagen für die Lüftung (Klimatisierung) ist der Nutzer mit Fragen wie den folgenden konfrontiert:
- Angabe der Räume ohne mechanische Lüftung (nur Fensterlüftung)
- Komfortstandard pro Raum (Kühlung? Befeuchtung?)
- Auslegung der Steuerung im Hinblick auf energiesparenden Betrieb
(Lüftung läuft nur, wenn sie gebraucht wird)
Generell sind die Fragestellungen bei bestehenden (allenfalls sogar denkmalgeschützten) Gebäuden meist deutlich komplexer sind als bei Neubauten.
.
3F. Kälte
Kälte wird benötigt für den Raumkomfort (Klimatisierung; siehe Buchstabe E, oben), aber auch für betriebliche Zwecke, etwa zur Kühlung eines Rechenzentrums. Man kann feststellen, dass der Bedarf an Kälte im Baubereich generell zunimmt.
Deutlich ansteigend ist der Kältebedarf insbesondere im Bereich der IT-Infrastruktur. Eine der Ursachen dafür ist eine neue Generation von Servern (Blade). Mehr Kühlung braucht auch die Internet-Telefonie (VoIP), speziell in den Unterwirecentern.
Für die Nutzer können sich Probleme ergeben, wenn die Erzeugung von Kälte eingeschränkt wird, indem beispielsweise aus denkmalpflegerischen Gründen die Anordnung von Rückkühlern auf dem Dach eingeschränkt wird. Dann kann sich die Situation einstellen, dass intern untern den Bezügern von Kälte um jedes Kilowatt der limitierten Kühlleistung gestritten wird.
Ein Beispiel: Das Rechenzentrum möchte für zusätzliche Server mehr Kühlleistung als die bereits beanspruchten 100 Kilowatt. Der Betreiber der Komfortlüftung will aber nichts von seinen 500 Kilowatt Kühlleistung abgeben, da er sonst im Sommer die maximale Raumtemperatur der gekühlten Räume von 26 Grad nicht mehr gewährleisten könnte.
.
3G. Schallschutz und Raumakustik

Es gibt in der Praxis bei neuen oder sanierten Gebäuden immer wieder Probleme mit dem Schallschutz und der Raumakustik.
Schallschutz
Beim Schallschutz geht es um den von aussen eindringenden Schall in ein Gebäude sowie um die Schallausbreitung von einem Raum zum anderen. Massgebend für den Stand der Technik auf diesem Gebiet ist die Norm SIA 181 «Schallschutz im Hochbau». Von Schallschutzmassnahmen sind Bauteile wie die folgenden betroffen:
- Aussenhülle (z.B. Einbau von Schallschutzfenstern)
- Wohnungstrennwand (z.B. Vermeidung von Geräuschen von Lift und Installationszonen)
- Decke (Vermeidung von Trittschall)
- Trennwand für Sitzungszimmer oder Einzelbüro mit erhöhter Anforderung an den Schallschutz
Nachträgliche Verbesserungen sind beim Schallschutz oft nur mit grossem Aufwand zu realisieren.
Raumakustik
Bei der Raumakustik geht es um die Kontrolle des Schalles innerhalb des Raumes selbst. Es muss vermieden werden, dass die Räume als zu laut empfunden werden. Es kann sich dabei um Grossraumbüros handeln oder um Hallen mit viel Publikumsverkehr. Ursache einer zu starken Halligkeit sind meist harte, glatte Oberflächen.
Nachträgliche Verbesserungen sind bei der Raumakustik meist einfacher möglich als beim Schallschutz. Bei einem zu lauten Grossraumbüro beispielsweise kann man gezielt Schallabsorber einsetzen. Das können an der Decke hängende Bauteile sein, die aus weichen, schallschluckenden Materialien bestehen.
.
Schwerpunkt 4: Beratung bei baubezogenen Verträgen
Zu den baubezogenen Beträgen gehören Honorarverträge und Generalunternehmer-Verträge. Nachfolgend gehe ich auf diese beiden Sachgebiete näher ein.
.
4A. Beratung bei Honorarverträgen
Das Gebiet der Planerverträge und des Honorarwesens im Bauplanungsgewerbe ist für Gelegenheitsbauherrschaften nie leicht verständlich gewesen. In den letzten etwa 20 Jahren ist die Situation aber vermutlich noch komplizierter geworden.
.
(1) Rückblick zur Entwicklung des Honorarwesens
Bis etwa zum Jahr 2000 werden im Bauplanungsgewerbe die Honorare von Architekten und Ingenieuren nach einer Jahrzehnte alten Formel berechnet. Das Honorar ist abhängig von der Bausumme und bemisst sich nach einem Tarif, dem so genannten «Kostentarif».
Im Zuge der Liberalisierung der Wirtschaft in den neunziger Jahren geraten Kartelle aller Art unter Druck und damit auch der «Kostentarif». Die Wettbewerbskommission WEKO verlangt bei den Bauplanerhonoraren mehr Wettbewerb. Der SIA kommt nicht darum herum, ein neues Honorarmodell zu entwickeln. Im Jahre 2003 präsentiert er das neue, kartellrechtlich unbedenkliche Zeitaufwandmodell.
Während bei der alten Honorarformel «nach Tarif» das Honorar von fünf Faktoren abhängig gewesen ist und in einem einzigen Rechengang hat ermittelt werden können, muss es nun vorkalkuliert werden. Zuerst wird der Zeitaufwand für die Planungsarbeit abgeschätzt. Die ermittelten Stunden werden dann mit den Stundensätzen der einzusetzenden Mitarbeitenden multipliziert. Gesamthaft gibt es ab 2003 acht Faktoren, die bei der Ermittlung des Honorars zu berücksichtigen sind (nach der erneuten Revision von 2014 sind es sogar neun Faktoren: B, p, n, q, r, U, i, s, h).
Auf Druck der WEKO darf der SIA zudem ab 2003 nicht mehr eine offizielle Liste der Stundenansätze veröffentlichen.
In den Jahren 2017/18 gerät der SIA mit seiner Honorarformel des Zeitaufwandmodells (ursprünglich aus dem Jahr 2003) wieder ins Visier der Kartellbehörden (Wettbewerbskommission WEKO). Der SIA reagiert darauf, dass er Ende 2018 eine abgeänderte Übergangslösung zu den Honorarordnungen herausgibt. Diese stellt sich jedoch in der Praxis als so schlecht heraus, dass sie per Ende 2019 bereits wieder zurückgezogen wird.
Ab Anfang 2020 wird es seitens des SIA keine völlig legale Honorarordnung mehr geben. In der Praxis dürfte man sich wahrscheinlich mehrheitlich an die eigentlich zurückgezogene Ausgabe von 2014 halten.
.
(2) Typische Fragestellungen bei Planerverträgen
Gemäss meinen Erfahrungen stehen bei nicht professionellen Bauherrschaften auf dem Gebiet des Vertrags- und Honorarwesens folgende Fragen im Vordergrund:
Markthonorar
Wie hoch ist das Markthonorar für eine bestimmte Planerleistung? Welchen Verhandlungsspielraum hat die Bauherrschaft? Wie geht sie vor, um den Markt spielen zu lassen?
Vertragsgestaltung
Worauf ist bei der Abfassung von Planerverträgen besonders zu achten? Soll der Mustervertrag des SIA für Planerverträge verwendet werden? Welche Punkte können für die Bauherrschaft heikel sein?
Architektenarbeit aufteilen
Wie lässt sich die Architektenarbeit aufteilen? Diese Frage stellt sich etwa dann, wenn die Bauherrschaft bereits einen Entwurfsarchitekten hat, dieser aber selber keine Bauausführung (Bauleitung) betreibt. Wie geht man hier vor? Welcher der beiden Vertragspartner (Entwurfs- resp. Ausführungsarchitekt) ist in welcher Phase der Chef des Planungsteams (Gesamtleiter)? Wie werden die Schnittstellen im Detail geregelt?
Bonus für kostengünstiges Bauen
Wie geht man vor, wenn man den Architekten für ein kostengünstiges Bauen motivieren will? Man kommt nicht darum herum, dafür selber ein massgeschneidertes Konzept zu entwickeln: das Pauschalhonorar mit Bonus für die Unterschreitung eines Kostendachs. Für sachkundige (oder sachkundig vertretene) Bauherren ist das Bonussystem ein sehr effizientes Modell, mit dem sich die Baukosten in erheblichem Masse beeinflussen lassen. Für Laien ist es allerdings nicht einfach in der Anwendung.
.
(3) Informationsquellen zum Vertrags- und Honorarwesen
Ich habe viel publiziert zum Thema des Honorarwesens in der Bauwirtschaft, und tue dies noch immer. Zurzeit kann ich besonders folgende Informationsquellen empfehlen:
Sachbuch «Bauplanerhonorare – Ratgeber für Bauherren (2017)»
Es stellt das Honorarwesen mit Stand vor der neuesten Intervention der WEKO von 2017/18 umfassend und praxisbezogen dar.
Nähere Informationen zum Buch mit diversen Leseproben befinden sich auf roethlisbergers-baublog.com, und zwar ab dieser Seite hier >>>
Blogbeiträge zu Vertrags- und Honorarfragen
Sie befinden sich bekanntlich momentan auf meinem Blog roethlisbergers-baublog.com. Hier finden Sie unter dem Sachgebiet «Honorarfragen» zahlreiche Blogbeiträge zu Vertrags- und Honorarfragen.
Speziell empfehlen möchte ich folgenden Beitrag:
«Aktuelle Entwicklungen im SIA-Honorarwesen» (datiert vom 30. Juli 2019).
Den Beitrag finden Sie hier >>>
.
4B. Beratung bei Generalunternehmer-Verträgen
Man spricht dann von einem Generalunternehmer-Vertragsmodell, wenn die Bauherrschaft als Bestellerin die Realisierung eines kompletten Bauwerks einem einzigen Werkvertragspartner überträgt: dem Generalunternehmer (GU). GU-Verträge haben somit eine erhebliche finanzielle Tragweite.
Auch Einmalbauherren von überschaubaren Bauprojekten können mit dem GU-Vertragsmodell in Kontakt kommen. Der Bau eines Typen-Einfamilienhauses beispielsweise dürfte in den meisten Fällen als generalunternehmer-ähnliches Geschäft zu betrachten sein.
Nachfolgend gehen wir auf einige wichtige Fragen ein, die sich bei GU-Werkverträgen stellen können.
.
(1) Vertragsgrundlage
Die grossen Generalunternehmer der Schweiz sind in einem Verband organisiert. Bis vor ein paar Jahren hat er Verband Schweizerischer Generalunternehmer (VSGU) geheissen. Die neue Bezeichnung lautet «Entwicklung Schweiz».
Es ist zu empfehlen, den Mustervertrag des oben genannten VSGU (neu: «Entwicklung Schweiz») als Vertragsgrundlage zu verwenden. Dieser hat vielfältige Vorteile. Er bietet eine erhöhte Rechtssicherheit, da er in der Branche ein anerkanntes und weit verbreitetes Instrument zur Vertragsgestaltung ist. Die verwendeten Begriffe sind etabliert und die Vertragspartner verstehen daher in der Regel das gleiche, wenn von Baubeschrieb, Bestellungsänderung oder Bauabnahme gesprochen wird.
Ein zentrales Merkmal des VSGU-Mustervertrags ist die Qualitätsgarantie (Gewährleistung). Die grossen Generalunternehmer bieten für das Bauwerk als Ganzes eine umfassende Systemgarantie. Sie haften also auch für die Leistungen der Subunternehmer und Lieferanten und insbesondere für alle Schnittstellen zwischen diesen. – Viele eher kleinere «Auch-Generalunternehmer» jedoch nehmen Abstand von dieser Garantie. Sie reichen dem Besteller lediglich ein Bündel von Garantiescheinen der einzelnen Subunternehmer weiter, und der Besteller muss dann bei einem Mangel selber schauen, wie er zu seinem Recht kommt. Der Bauherr bekommt also keine Systemgarantie, sondern eine Bauteilgarantie (Garantie pro Arbeitsgattung).
Der VSGU-Mustervertrag beinhaltet eine ausführliche Beilage in Form der Allgemeinen Vertragsbedingungen. Dieses Dokument ist für den Vertragsanwender sehr praktisch. Alle wesentlichen Punkte, an die man denken sollte, sind hier aufgeführt. Im Vergleich dazu sind die Vertragsvorlagen von einzelnen Anbietern im Bereich des Einfamilienhausmarktes (Typenhäuser) teilweise lückenhaft und unausgewogen. Es besteht die Gefahr, dass man etwas Wichtiges vergisst.
.
(2) Preisbestimmung
Es gibt verschiedene Methoden, wie bei GU-Werkverträgen der Werkpreis festgelegt werden kann. Die am besten bekannte Methode ist der traditionelle Pauschalpreis. Für den Bauwilligen dürfte es sich aber lohnen, sich näher mit der neueren Methode der offenen Abrechnung (mit Kostendach) zu befassen. Es ist ein sehr transparentes Verfahren, bei dem für die Bauherrschaft jede Zahl einsehbar ist. Wenn es gelingt, das Kostendach bei der Abrechnung zu unterschreiten, wird der eingesparte Betrag zwischen Generalunternehmer und Bauherr nach einem vorher vereinbarten Schlüssel aufgeteilt.
Als bauherrenseitiger Projektleiter habe ich mit dem Modell der offenen Abrechnung mit Kostendach gute Erfahrungen gemacht und ich empfehle jedem Bauinteressierten, die Methode in Erwägung zu ziehen.
.
(3) Bewirtschaftung der Risiken
Das Bauen ist bekanntlich mit mannigfaltigen Risiken verbunden. Gemäss meinen Erfahrungen ist die Bewirtschaftung der Risiken eines der wichtigsten Themen, mit dem sich die Bauherrschaft befassen muss und das somit im GU-Werkvertrag zu regeln ist.
Traditionell spricht man von drei Garantien, die Generalunternehmer anbieten, um dem Bauherrn Risiken abzunehmen. Diese Garantien beziehen sich auf den Preis, den Übergabetermin und die Ausführungsqualität des Bauwerks. Zu diesen allseits bekannten Garantien können aber noch weitere hinzukommen, wie folgende Beispiele zeigen:
• Garantie beim Bauhandwerkerpfandrecht
Das Bauhandwerkerpfandrecht ist beim Bauen mit einem GU eine ernsthafte Bedrohung für den Besteller. Das Grundstück der Bauherrschaft haftet nämlich als Pfand für eine Schuld, die sich gar nicht an den Besteller selber richtet, sondern an den GU. Der Besteller muss daher Vorkehrungen treffen, um sich vor dem Risiko von Doppelzahlungen zu schützen. Eine empfehlenswerte Schutzmassnahme ist eine Garantie oder Solidarbürgschaft eines Finanzinstituts, die vom GU beigebracht wird.
• Erfüllungsgarantie
Oft wird vereinbart, dass der GU eine so genannte Erfüllungsgarantie abgibt. Diese kann zum Beispiel 20% der Werkvertragssumme ausmachen und im Verlaufe der Bauzeit degressiv abnehmen. Die oben angesprochene Garantie beim Bauhandwerkerpfandrecht kann mit der Erfüllungsgarantie gekoppelt werden und Gegenstand einer einzigen Urkunde sein, die von einem Finanzinstitut ausgestellt wird.
• Planungsgarantie
Falls die Ausführungsplanung im Leistungspaket des GU eingeschlossen ist, haftet er dafür. Er haftet insbesondere für Planungsfehler der von ihm beauftragten Planer.
Es ist auch denkbar, dass der GU die Haftung für das Bauprojekt übernimmt, das VOR seinem Beizug ausgearbeitet worden ist. Man spricht in diesem Zusammengang von der Haftung für vorbestandene Planungsfehler.
• Garantie für Baugrubenrisiken
In der Praxis können oft einzelne (aber nicht alle) Baugrubenrisiken dem GU übertragen werden. Der GU übernimmt beispielsweise das Risiko, dass die im Werkvertrag angenommene Methode des Baugrubenabschlusses (z.B. Nagelwand) angewendet werden kann. Falls doch auf eine wesentlich teurere Methode ausgewichen werden müsste (z.B. Rühlwand), hätte dies keinen Einfluss auf das Kostendach (das Kostendach würde also nicht erhöht).
• Mietzinsgarantie
Der GU sorgt nach der Bauvollendung für die Vermietung des neuen Gebäudes. Falls Flächen nicht vermietet werden können, ersetzt der GU dem Besteller während einer gewissen Frist die entgangenen Mietzinseinnahmen.
.
Literaturhinweis
Buch «Mit wem baue ich? – Bauausführung aus Bauherrensicht» von Hans Röthlisberger aus dem Jahr 2013. Hier wird das Generalunternehmerprinzip ausführlich besprochen. Der ganze dritte Teil des Buches ist ihm gewidmet (Kapitel 7 bis 11).
Nähere Informationen zum Buch befinden sich auf roethlisbergers-baublog.com, und zwar ab dieser Seite hier >>>.
Umfangreiche Teile der Ausführungen über das Generalunternehmerwesen sind im Buch «Mit wem baue ich?» als Leseproben verfügbar:
• Leseprobe Kapitel 8: Generalunternehmer-Werkvertrag hier >>>
• Leseprobe Kapitel 9: Bewirtschaftung der Risiken hier >>>
• Leseprobe Kapitel 11: Projektablauf hier >>>
.
Schwerpunkt 5: Terminplanung
Bei Bauprojekten werden die Terminpläne des Bauprozesses vom beauftragten Planungsteam erstellt. Ergänzend werden Terminpläne benötigt, die sich speziell an die Bauherrschaft und die Nutzer richten.
Im Unterschied zu den Fachleuten des Baugewerbes sind die Personen aus dem Kreis von Bauherrschaft und Nutzern oft nicht sehr versiert im Lesen von Terminplänen. Darum müssen diese für Laien leicht verständlich sein.
Für Aufgaben wie die folgenden werden bauherren- resp. nutzerseitige Terminpläne benötigt:
- Steuerung der bauherrenseitigen Projektleitung
(Übersichtsterminplan für das Entscheidungsgremium) - Auslagerungen und Inbetriebnahmen
- Koordination von nutzerseitigen Teilprojekten
.
Beispiel A: Terminplan für langen Planungshorizont
Der Planungshorizont ist mit 7 Monaten eher lange und die Planungseinheit entspricht im wesentlichen einer Woche. Der Detaillierungsgrad kann daher als mittel bezeichnet werden. Tagesgenaue Zeitangaben lassen sich zwar darstellen, sind aber nur beschränkt ablesbar.
Der Terminplan ist erstellt mit einem Programm zur Tabellenkalkulation (Excel). Da diese Software weit verbreitet ist, können in der Erarbeitungsphase Korrekturen und Anpassungen von den beteiligten Personen einfach vorgenommen werden.
.

Abbildung Terminplan Beispiel A
Planungshorizont 7 Monate; Planungseinheit ist im wesentlichen die Woche; Tabelle erstellt mit Programm zur Tabellenkalkulation (Excel).
.
Beispiel B: Tagesgenauer Terminplan für kurzen Planungshorizont
Im Vergleich zum Beispiel A ist hier der Detaillierungsgrad deutlich höher. Für einen Zeitraum von wenigen Wochen werden die Tätigkeiten tagesgenau angegeben.
Gut lesbar ist bei diesem ebenfalls mit Excel erstellen Terminplan die zeitliche Gliederung der Wochen mit den grau dargestellten Wochenenden. Spezielle Anlässe sind als vertikale Balken in leuchtenden Farben (hellgelb, blau) dargestellt und darum sofort erkennbar.
.

Abbildung Terminplan Beispiel B
Planungshorizont 5 Wochen; tagesgenaue Planung; Tabelle erstellt mit Programm zur Tabellenkalkulation (Excel).
.
Beispiel C: Terminplan mit Angabe von Abhängigkeiten
Der Terminplan gemäss Beispiel C ist ähnlich konzipiert wie ein netzplanartiger Terminplan und zeigt viele Abhängigkeiten zwischen den Tätigkeiten auf.
Der Terminplan ist mit einem Zeichenprogramm (CAD) gezeichnet und bietet daher alle Freiheitsgrade der optischen Darstellung. Kommentare und Erläuterungen aller Art können angegeben werden.
Der Terminplan bietet ein Maximum an Anschaulichkeit, ist aber aufwendiger zu erstellen als ein Excel-basierter Terminplan.
.

Abbildung Terminplan Beispiel C
Planungshorizont 9 Monate; teilweise tagesgenaue Planung; Tabelle erstellt mit CAD-Programm; Abhängigkeiten aller Art können dargestellt werden.
Bild oben: Ansicht des gesamten Terminplans
Bild unten: Detailausschnitt
.
Schwerpunkt 6: Industrieplanung
Als Betriebsingenieur (Nachdiplomstudium ETH) und erfahrener Industriearchitekt befasse ich mich seit Jahrzehnten mit Industriebauprojekten.
Das Leistungsspektrum der Industrieplanung umfasst die folgenden Sachgebiete:
.
6A. Planungsgrundlagen
Am Anfang eines Projektes werden die Planungsgrundlagen zusammengestellt. Es entstehen dabei Unterlagen wie die folgenden:
- SOLL-Produktionsprogramm
- genaue Analyse und Dokumentation der Abläufe
- Mengengerüste der einzelnen Prozessschritte
- Verzeichnis der Maschinen (mit Maschinenlayout; Anschlusswerten etc.)
- Betriebseinrichtungen (z.B. Hakenhöhen und Traglasten für Krane)
- kritische Dimensionen in Grundriss und Schnitt
- Ablaufschema; Materialflussdarstellung; Ideallayout
- Medienversorgung (Starkstrom; Lüftung; Industriegas; Druckluft etc.)
Die Darstellung unten illustriert, in welch hohem Konkretisierungsgrad die Planungsgrundlagen für ein gewerbliches Projekt erarbeitet werden.
.

Abbildung: Beispiel von Planungsgrundlagen für ein gewerbliches Bauprojekt
Für ein gewerbliches Bauprojekt werden die notwendigen Nutzungsanforderungen systematisch zusammengestellt. Zum Raumprogramm gehören unter anderem eine Reparaturwerkstätte sowie ein Waschraum für grosse Nutzfahrzeuge. Die oben wiedergegebenen Schnittzeichnungen geben einen Eindruck davon, in welch hohem Detaillierungsgrad die Anforderungen spezifiziert werden. Sie umfassen Aspekte wie lichte Raumhöhen, Kranhakenhöhen, betriebsbedingte Unterkellerungen, Länge und Traglast der Hebeeinrichtung im Waschplatz, etc. Bei den Fahrzeugen werden die maximalen geometrischen Dimensionen angegeben (z.B. Höhe mit aufgerichtetem Kippauflieger). – (Reales Projekt; anonymisiert)
.
6B. Gesamtbebauungsplan
Der Gesamtbebauungsplan (Masterplan) ist das langfristig angelegte Steuerungsinstrument für die bauliche Entwicklung eines Areals. Er gewährleistet, dass nicht nur die Zwischenzustände, sondern auch der Vollausbau den Anforderungen möglichst optimal entsprechen.
Bei der Erarbeitung werden Abklärungen zu Themen wie den folgenden getroffen:
- bauliches Ausbaupotential des Areals
- Verkehrserschliessung (Lastwagen, Bahn, Autos)
- Parkplätze (bei vielen Arealen ein zentrales Thema)
- Bausubstanz (Restlebensdauer; Sanierungsbedarf)
- Nutzbarkeit der Gebäude (polyvalente Nutzung)
- Medienversorgung (Zentralen; Verteilung)
- etappenweise Realisierung
- Risikoüberlegungen (Flexibilität bei unerwarteten Entwicklungen)
.

Abbildung: Beispiel eines Gesamtbebauungsplans (Masterplans)
Ein Industrieunternehmen mit teilweise alter (historischer) Bausubstanz konzentriert seine industriellen Aktivitäten in einem neuen, mehrgeschossigen Gebäude (blau). Die alte Bausubstanz (dunkelgrau) wird saniert und für kleingewerbliche Nutzungen vermietet. Dies ist finanziell interessant, da die historischen Gebäude an idyllischer Lage (Bach; Bäume) einem grossen Bedürfnis entsprechen. Eine grosse Parzelle (rot) wird als strategische Ausbaureserve freigehalten. Ein grosszügiger Parkplatz trägt wesentlich zur Attraktivität der Gesamtanlage bei. — (Reales Projekt; anonymisiert)
.
6C. Layoutplanung
Gegenstand der Layoutplanung ist die Anordnung von Maschinen und Betriebseinrichtungen in einem Industriegebäude. Wegleitend für die Erarbeitung sind Kriterien wie die folgenden:
- guter Materialfluss (kurze Wege; Annäherung an Ideallayout)
- Flexibilität hinsichtlich Erweiterungen und Umstellungen
- optimale Medienversorgung
- gute Anbindung an den externen Verkehr (Anlieferung, Spedition)
- günstige Investitions- und Betriebskosten
Die nachfolgenden zwei Beispiele zeigen Layoutplanungen für eine Fabrikerweiterung und einen Fabrikneubau. Die dargestellten Pläne basieren auf realen Projekten, sind aber anonymisiert (abgewandelt).
.

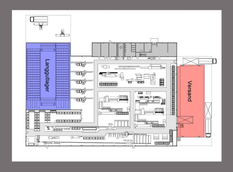
Abbildung: Layoutplanung für eine Fabrikerweiterung
Bei diesem Industrieunternehmen der Metallbearbeitung werden die logistischen Abläufe optimiert. Die Analyse ergibt, dass am Anfang des Materialflusses ein neues Kassettenlager für Langgut (blau) und am Ende der logistischen Kette eine neue Versandbereitstellung (rot) benötigt werden. Bei nur unwesentlich mehr Fläche erhöht sich dadurch das Produktionsvolumen erheblich und die Abläufe werden deutlich rationeller. — (Reales Projekt; anonymisiert)
.

Abbildung: Layoutplanung für einen Fabrikneubau
Der abgebildete Layout dieser Fabrik der Metallbearbeitung richtet sich grundsätzlich nach dem Materialfluss. Es gibt aber diverse Bereiche, die prozessbedingt in separaten Räumen untergebracht werden (z.B. Immissionen erzeugende oder sehr saubere Prozesse). Grosse Teile der Medienversorgung befinden sich ausserhalb des Gebäudes.
Die Bauherrschaft hat selber über das Prozesswissen verfügt; für die Bauplanung ist ein Industriearchitekt beigezogen worden. — (Reales Projekt; anonymisiert)
.

